Architects Explain What Making House Plans With Angled Garage Takes.
This is a review for a architects business in Washington, DC: "We had an urgent concern with a structural issue in our old house so we reached out to Bitarchitects based on their good reviews here. Turn your construction vision into reality in Washington DC with the help of skilled residential architects. Reviewed with a data-based methodology. Search 4,646 Washington D.C. architects, architecture firms & building designers to find the best architect or building designer for your project. See the top reviewed local architects and building.
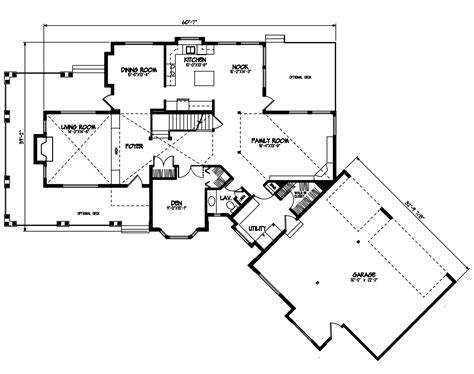
Transitional Floor Plans Angled Garage
