Locksmiths Explain The Vertical Rod Panic Bar On Storefront Double Doors

Locksmiths Explain The Vertical Rod Panic Bar On Storefront Double Doors

Vertical Rod Panic Bar Installation for Enhanced Safety and Compliance

IRONWALLS Surface Vertical Rod Panic Bar, Black 27.5” Commercial Door

IRONWALLS Surface Vertical Rod Panic Bar, Black 27.5” Commercial Door ...

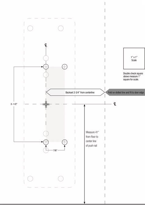
Panic Bar Vertical Rod Adjustment at Amparo Pacheco blog

Panic Bar Vertical Rod Adjustment at Amparo Pacheco blog

Read also: Experts Explain How Patio Door Glass Film Reflects Summer Heat

close